Kamienna Góra - wielomieszkaniowa i jednorodzinna

Działka (Mieszkaniowa) na sprzedaż
4 950 000,00 PLN , Pow. 797 m2
Drukuj ofertę
Drukuj ofertę
Typ nieruchomości:
Działka
Powierzchnia:
797 m2
Typ transakcji:
sprzedaż
Lokalizacja:
Gdynia Kamienna Góra , Żołnierzy I Armii Wojska Polskiego
Numer oferty:
267788
Cena za m2:
6 210,79 PLN
Nieruchomość gruntowa (zabudowana domem wolnostojącym)  w samym centrum Kamiennej Górny. Doskonała lokalizacja. Do plaży krótki spacer - zaledwie 700 m. Wokół piękne wille i modernistyczne budynki nawiązujące do historycznej, gdyńskiej architektury. Spokój i prestiż.
Prawie 800 metrowa działka z obowiązującym miejscowym planem  zagospodarowania przestrzennego pod budownictwo wielorodzinne i jednorodzinne. 
Główne założenia mpzp dla tego terenu:
- teren oznaczony jako 33 MN1, MW1 - zabudowa jednorodzinna wolnostojąca, zabudowa wielorodzinna - budynki zawierające do 4 mieszkań.
- pow. zabudowy max 0,35 pow. działki budowlanej
-  intensywność zabudowy: max 0,7
- wysokość do 12 m (od 2 do 3 kondygnacji naziemnych)
- szer. elewacji frontowej do 15 m, elewacji bocznej do 12 m
- pow biologicznie czynna miń 35 % pow. działki budowlanej

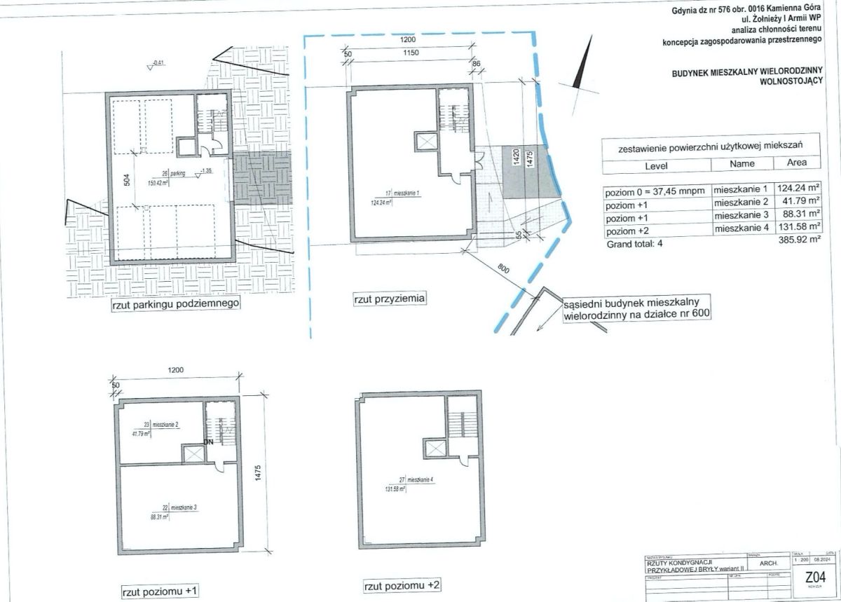
Zgodnie z powyższymi założeniami  wykonano koncepcję zabudowy działki budynkim wielorodzinnym, 4 mieszkaniowym o pow. całkowitej naziemnej 529 m2 i pow. PUM 386 m2. (szczegółowe dane dostępne w formie elektronicznej u agenta). Do oferty załączono zdjęcie z koncepcji pokazujące rzuty projektowanych mieszkań: parter mieszkanie o powierzchni 124 m2 z ogrodem, I piętro: mieszkanie o powierzchni 42 m2 oraz mieszkanie o powierzchni 88 m2, II piętro: penthouse o powierzchni 131 m2 z dużym tarasem. Uwaga:  powyższe założenia to tylko koncepcja architektoniczna - w razie chęci kontynuowania projektu należy ja uzgodnić z UM Gdyni.

Niniejsze ogłoszenie jest wyłącznie informacją handlową i nie stanowi oferty w myśl art. 66, paragraf 1. Kodeksu Cywilnego
Nieprawidłowy adres E-mail