Apartament w pierwszej lini od Motławy

Mieszkanie na sprzedaż
2 950 000,00 PLN , Pow. 80,91 m2
Drukuj ofertę
Drukuj ofertę
Typ nieruchomości:
Mieszkanie
Powierzchnia:
80,91 m2
Typ transakcji:
sprzedaż
Liczba pokoi:
3
Lokalizacja:
Gdańsk Stare Miasto , Targ Rybny
Rok budowy:
2009
Piętro:
1 na 4
Numer oferty:
294382
Cena za m2:
36 460,26 PLN
Targ Rybny - 100 metrów od Hotelu Hilton. Lokalizacja premium. Budynek premium - niewielki apartamentowiec z lokalami użytkowymi na parterze. Wykonany w wysokiej jakości, zaprojektowany przez renomowane warszawskie biuro architektoniczne - Kuryłowicz & Associates. Usytuowany 8 m od wody przy Rabackim Pobrzeżu. 
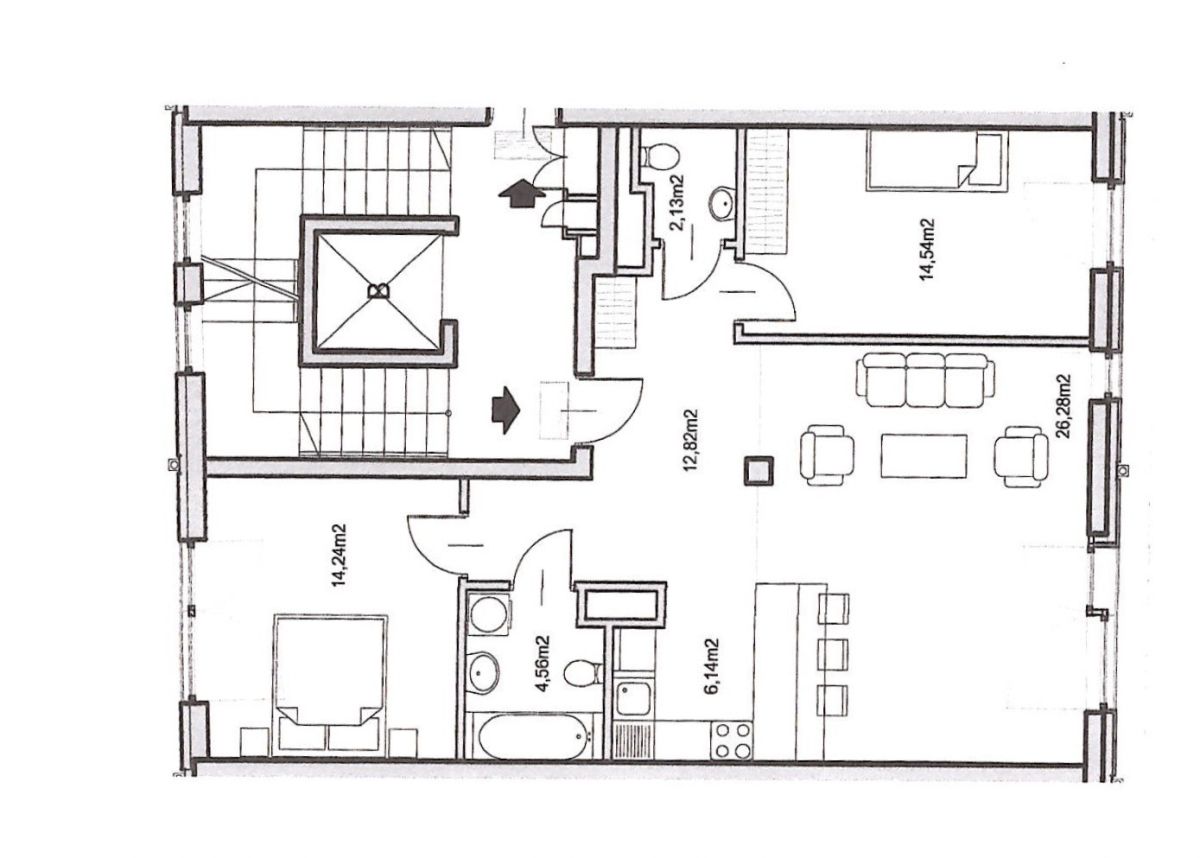
Lokal mieszkalny (obecnie wykorzystywany na działalność biurową) o powierzchni 81 m2, położny na I piętrze. Lokal dwustronny. Duże okna od strony Motławy. Główna sypialnia od drugiej strony mieszkania.  
Załączono rzut lokalu do galerii zdjęć.
Możliwość przywrócenia lokalu dom stanu pierwotnego - mieszkania lub używania go w zakresie wynajmu na lokal biurowy.

Pełną ofertę naszych nieruchomości publikujemy na naszej stronie www.muskat.pl

Niniejsze ogłoszenie jest wyłącznie informacją handlową i nie stanowi oferty w myśl art. 66, paragraf 1. Kodeksu Cywilnego
Nieprawidłowy adres E-mail